Agricultural irrigation photovoltaic 1.1kw water pump project in Philippines
namkoo solar
Agricultural irrigation photovoltaic water pump project in Philippines

Millions of people around the world live with limited access to water. In many communities, ground water is extracted through electric water pumps, which use diesel to fuel their systems. However, these systems not only require costly, regular servicing and the purchasing of fuel, they emit carbon dioxide polluting the atmosphere.
Solar Water Pumping, or photovoltaic water pumping (PVP), provides an alternative. After years of research and technological advances, it has proven to be operationally, financially, and environmentally sustainable. In recent years, the cost of solar technology has dropped tremendously. Prices for the solar panels used in these systems have dropped up to 80%. In addition, these panels last around 25 years, requiring little maintenance throughout this time.

These factors have made Solar Water Pumping an extremely viable way to expand energy access across developing countries and communities, while creating a strong resistance to shifts in rainfall caused by climate change or unreliable seasonable patterns. Some governments have opted to subsidize the cost of solar pumping, increasing the pool of shared learning for this emerging technology.
Even though solar water pumping is ready for mainstreaming and has started to take off in some parts of the world, its benefits remain largely unknown to communities, governments, and development institutions.


Project Date: 10th,Oct ,2020
Project Site: Brgy,Bungro,City of San Fernando (LU)

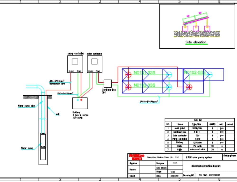
This solar water pump system project mainly supplies water to nearby farmland. The project uses a DC voltage 72V water pump with a power of 1100W. The photovoltaic modules use 8pcs 275W polycrystalline modules, and are equipped with 6pcs 12V150AH gel batteries. The battery pack can be used to ensure the water consumption in rainy days and at night.
After two years of use, the customer feedback effect is still very good.

Namkoo Group is committed to providing customers with professional photovoltaic water pump system solutions. We have more than 10 years of photovoltaic solution experience, and our technical team has more than 50 people.
Facing projects in different countries and different use environments, we have different targeted solutions, and the quality of supporting products has always been ahead of the industry average. With regard to the Philippines market, our company provides solutions for photovoltaic water pump systems, industrial and commercial solutions for grid connected systems, household energy storage systems, and street lamp projects. Customers are welcome to inquire from us at any time.







